Finestre in Alluminio – Vetrocamera Premium per Costruzioni Moderne
Scegli finestre in alluminio per la tua casa e goditi i vantaggi di un design elegante, resistenza superiore ed efficienza energetica ottimale. Da DUZOC utilizziamo profili premium di Aluprof, Cortizo e Schüco, rinomati per la loro qualità e prestazioni.


DUZOC
Perché scegliere infissi in alluminio con vetrocamera doppia o tripla?
Le finestre in alluminio rappresentano la scelta ideale per progetti moderni e minimalisti, grazie ai profili sottili, all’eccellente durabilità e all’elevata capacità di isolamento termico e acustico. Integrando vetri doppi o tripli, potrai godere di un maggiore comfort, massima luce naturale e un risparmio significativo sui costi energetici.
Resistenza elevata alla corrosione e alle condizioni meteorologiche estreme
Design moderno, elegante e minimalista
Isolamento termico e acustico ottimale
Design moderno, elegante e minimalista




AWS 70 BS.HI - Schüco
Schüco AWS 70 BS – Serie di finestre block con anta nascosta
- Prestazione energetica: Uw = 0,90–1,10 W/(m²K) (con vetro triplo da ~40–62 mm)
- Comfort acustico: isolamento acustico fino a 45 dB
- Sicurezza: protezione antieffrazione fino alla classe RC 3
- Profondità del profilo: 70 mm
- Vetro isolante: doppio o triplo, con spessore da 21 a 40 mm
- Tenuta superiore: 3 guarnizioni
Schüco AWS 70 BS.HI una costruzione a blocco con telai sottili per un design ricercato.
La serie Schüco AWS 70 BS.HI è un sistema moderno e ad alte prestazioni.
I requisiti energetici sono soddisfatti da un’ampia gamma di profili e costruzioni ben progettate. Sono disponibili diverse varianti di profilo con una profondità costruttiva di 70 mm, in grado di soddisfare tutte le esigenze speciali di design.
AWS 90.SI+ - Schüco
Schüco AWS 90.SI+ – Finestre con isolamento termico fino al livello adatto per case passive
-
Prestazione energetica: Uw ≈ 0,80 W/(m²K) con vetro triplo (Ug ≈ 0,60 W/(m²K))
-
Comfort acustico: isolamento acustico fino a 47 dB
-
Sicurezza: protezione antieffrazione fino alla classe RC 3
-
Profondità del profilo: 90 mm
-
Vetro isolante: triplo con spessore fino a 68 mm
-
Tenuta superiore: 3 guarnizioni
Schüco AWS 90.SI+ combina i vantaggi dell’alluminio con un isolamento termico eccezionale, caratteristico di un’architettura sostenibile.
Schüco AWS 90.SI+ soddisfa le più esigenti richieste architettoniche in termini di design, grazie a un profilo con una profondità di montaggio di soli 90 mm. Utilizzando la ferramenta a scomparsa Schüco AvanTec SimplySmart, è possibile realizzare ante mobili fino a 160 kg.






AWS 70.HI - Schüco
Finestre Schüco AWS 70.HI con un elevato grado di isolamento termico
Prestazione energetica: Uf ≈ 1,50 W/(m²K) / Uw ≈ 0,92–1,40 W/(m²K) (a seconda del tipo di vetro isolante)
Comfort acustico: isolamento acustico fino a 48 dB
Sicurezza: protezione antieffrazione fino alla classe RC 3
Profondità del profilo: 70 mm
Vetro isolante: doppio o triplo, con spessore da 21 a 62 mm
Tenuta superiore: tenuta all’acqua: classe 9A, permeabilità all’aria: classe 4, resistenza al vento: classe C5/B5
Schüco AWS 70.HI, un sistema per finestre con numerose varianti costruttive.
La serie Schüco AWS 70.HI è un sistema moderno e ad alte prestazioni. I requisiti energetici sono soddisfatti grazie a un’ampia gamma di profili e dettagli costruttivi ben studiati. La serie è adatta per finestre con apertura verso l’interno o verso l’esterno. Sulla base del profilo con profondità costruttiva di 70 mm sono disponibili numerose soluzioni di design differenti.
MasterLine 10 - Reynaers Aluminium
Prestazioni Tecniche:
Prestazione energetica: Uf ≈ 0,99 W/(m²K) / Uw ≈ 0,80 W/(m²K) (con vetro isolante Ug ≈ 0,60 W/(m²K), per anta-telaio a vista 104 mm, vetro spesso 48 mm)
Comfort acustico: isolamento acustico fino a 46 (-1;-4) dB per tipo TuTi, oppure 44 (-2;-4) dB per tipo DC
Sicurezza: protezione antieffrazione classe RC2–RC3
Profondità del profilo: 107 mm (profondità del telaio)
Vetro isolante: doppio o triplo, con spessore da 30 a 88 mm
Tenuta superiore: tenuta all’aria classe 4, tenuta all’acqua classe E900, resistenza al carico del vento classe C4
Le finestre in alluminio MasterLine 10 si adattano perfettamente alle tendenze architettoniche di oggi e di domani.
La soluzione certificata per case passive è ideale per edifici a basso consumo energetico, poiché combina il massimo apporto di luce naturale con prestazioni ottimali e sicurezza, senza compromessi.
Grazie al design flessibile e alla tecnologia avanzata, MasterLine 10 offre infinite possibilità di configurazione.









CORTIZO 70 BT - CORTIZO Aluminios
Vetraggio fino a 55 mm, ideale per vetri doppi o tripli ad alte prestazioni.
Prestazione energetica: Uw ≈ 0,90 W/(m²K) (dipende dalla configurazione)
Comfort acustico: isolamento acustico fino a 44–46 dB
Sicurezza: Tenuta all’acqua: Classe E1500
Profondità del profilo: 70 mm (telaio) / 78 mm (anta)
Vetro isolante: doppio o triplo; spessore del vetro fino a 55–65 mm
Tenuta superiore: Tre guarnizioni di tenuta in EPDM – Barri di poliammide di larghezza 32–35 mm
La finestra ideale della gamma Cortizo COR 70 Industrial BT, adatta a diversi tipi di installazione grazie alla sua versatilità e robustezza.
Caratteristiche tecniche:
Profilo in alluminio – profondità 70 mm (telaio) e 78 mm (anta), con taglio termico ottenuto tramite una barriera in poliammide rinforzata da 32–35 mm, che garantisce un eccellente isolamento termico e acustico.
MB-79N - ALUPROF
Prestazione energetica: Uw fino a 0,64 W/(m²·K)
Comfort acustico: isolamento fino a 46 dB
Sicurezza: protezione antieffrazione classe RC1–RC3
Profondità del profilo: 79 mm
Vetro isolante: doppio o triplo, fino a 63 mm
Tenuta superiore: 3 guarnizioni
Profilo Aluprof MB-79N: profondità 79 mm, sistema a taglio termico con isolamento avanzato
Rinforzo in acciaio zincato chiuso: fino a 3 mm per finestre e porte, maggiore resistenza strutturale
Vetro termoisolante: doppio o triplo vetro da 44 a 63 mm, con distanziatore termico a bassa conducibilità
Ferramenta Maco (Austria): chiusure antieffrazione con micro-ventilazione integrata
La soluzione ideale per eleganza, comfort termico, isolamento acustico, sicurezza e durabilità.
Una scelta perfetta che unisce valore e prestazioni con un sistema completo in alluminio con taglio termico e vetro termoisolante.
Guarnizioni disponibili in grigio per profili standard e in nero per profili pellicolati.
Design moderno con linee pulite e profili robusti.
Sistema a 3 guarnizioni per un isolamento avanzato contro aria, acqua e rumore.
Valore di trasmittanza termica fino a Uw = 0,64 W/(m²K).






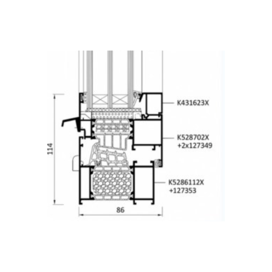
SublimAL MB86N SI
Prestazione energetica: Uw fino a 0,72 W/m²K
Comfort acustico: isolamento acustico Rw fino a 47 dB
Sicurezza: protezione antieffrazione fino alla classe RC 2
Profondità del profilo: Telaio 77 mm, Anta 86 mm
Vetro isolante: Triplo vetro fino a 72 mm
Tenuta superiore: 3 guarnizioni
Vetro isolante max: 60 mm con distanziatore termico DuraTherm
Prova di tenuta massima: classe 4 (EN 12207:2001)
Impermeabilità: classe E (4800 Pa)
Resistenza al vento: classe C5 (2000 Pa)
Coefficiente di trasmittanza termica Uw: 0,75 W/m²K
Il sistema Sublim AL MB86N SI si distingue per l’elevata resistenza dei profili, che permette la realizzazione di finestre di grandi dimensioni con eccellenti parametri termici e di tenuta.
Grazie alla sua alta efficienza energetica, rappresenta una soluzione ideale per soddisfare esigenze diversificate, offrendo isolamento termico, acustico e sicurezza.
La robustezza dei materiali e la possibilità di integrare vetri tripli fino a 72 mm garantiscono prestazioni superiori e durature, ideali sia per edifici residenziali che commerciali.
Infissi Premium per Finestre in Alluminio
Da DUZOC, selezioniamo solo i migliori produttori per le nostre finestre in alluminio. Collaboriamo con i leader del settore per offrirti soluzioni di alta gamma, prestazioni garantite ed estetica superiore.
Aluprof

Cortizo

Schüco
Le finestre in alluminio Schüco sono sinonimo di durabilità, sicurezza e isolamento termico superiore. Sono perfette per progetti premium in cui qualità ed estetica sono fondamentali.






Domande frequenti
Utilizziamo vetri isolanti doppi o tripli, a seconda delle esigenze, tutti conformi agli standard europei di efficienza energetica.
Tutti i nostri prodotti sono coperti da una garanzia minima di 5 anni.
Vuoi una soluzione durevole ed efficiente per le finestre?
Vuoi finestre in alluminio moderne, efficienti e durevoli per il tuo progetto? Contatta il team DUZOC e ricevi un preventivo personalizzato, perfettamente adattato alle tue esigenze!
- +41 799 154 045
- info@duzoc.ch
- Via Pian Scairolo 11 / Palazzo Ga-Ja 6915 Pambio Noranco

Dove consigliamo le finestre in alluminio?
Le finestre in alluminio si adattano perfettamente a diversi tipi di costruzioni, da quelle residenziali a quelle commerciali e istituzionali:
Abitazioni moderne e ville di pregio – per un aspetto elegante e un’alta efficienza energetica.
Spazi commerciali e uffici – per resistenza, abbondante luce naturale e comfort acustico.
Edifici pubblici e istituzioni – per durabilità e manutenzione semplificata.
Scopri anche altri tipi di finestre
Finestre in PVC – ideali per progetti architettonici moderni e con un ottimo rapporto qualità-prezzo.
